蒲氏居
传统人居文化
传承馆
传承+实践 人居文化智慧
文化交流联系电话:
155-2805-2725
首页
世家风水
文脉起名
民俗命理
传统择吉
风水案例
民俗风水
风水研习
起名取名
蒲氏居溯源
蒲氏居溯源
蒲氏居理念
蒲家逸简介
蒲氏居接洽
首页
世家风水
文脉起名
民俗命理
传统择吉
风水案例
民俗风水
风水研习
起名取名
蒲氏居溯源
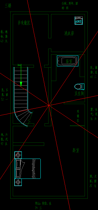
蒲氏居:成都青羊区张先生别墅风水案例
成都青羊区张先生别墅风水布局,依托城西文脉底蕴,融浣花溪水系、青羊宫文脉打造藏风聚气格局。庭院设环抱水景聚财,后山景做玄武靠山,契合川西别墅前照后靠老理。入户避直冲阳台,
客厅明堂
开阔纳气,卧室避开西北缺角,绿植选无刺品类,适配青羊主城低密墅区特点,兼顾文脉与居家气场。
成都青羊别墅屋盖实景,贴合城西文脉建筑特色
青羊别墅客厅实景,明堂开阔藏风聚气
庭院环抱水景规划,聚财适配浣花溪水系特点
别墅玄武靠山布局,后山景纳气契合川西老理
入户玄关挡煞设计,规避大门直冲阳台禁忌
卧室方位规划,避开西北缺角风水讲究
庭院绿植摆置设计,选无刺品类贴合民俗
客厅财位布局,借力青羊宫文脉旺运
书房文昌位规划,贴合城西文脉底蕴
别墅全屋风水总览,融水系文脉藏风聚气
返回上一页
在线咨询
上一篇:
蒲氏居:成都武侯区王女士家居风水案例
下一篇:
蒲氏居:重庆江北区李先生家居风水案例
填写您的项目需求给我们。
*请认真填写需求信息,我们会在24小时内与您取得联系。
返回顶部
155-2805-2725
在线咨询
微信二维码
电话沟通
在线客服